Fahle House Fahle House

Fahle House

An urban landmark at the gates of Tallinn

Fahle House: A Journey from Cellulose factory to Modern Landmark

Fahle House’s limestone structure was originally built in 1926 as the boiler house of a cellulose factory. Designed by architect Erich Jacoby, the factory was an imposing structure made of local stone, reflecting both its economic aspirations and the architectural styles of the time under the leadership of Emil Fahle.

However, the factory’s fortunes changed drastically in the early 1990s. With the collapse of the Soviet Union and Estonia’s subsequent independence, the factory ceased operations in 1993, leaving the building abandoned. Its once-imposing walls became a symbol of a bygone era. For nearly a decade, the structure lay in ruins, overtaken by nature but still retaining the potential for a new purpose.

The Idea of Renovation and New Additions

In 2004, together with construction giant Andres Koger, we saw an opportunity to breathe new life into the crumbling structure. Our concept was to add a contrasting, lighter-looking glass box atop the existing building. This additional part offers the best views and commanded the highest sales price, functioning as a financial donor for the costly reconstruction of the lower floors.

Our design created multifunctional spaces, transforming the former factory into a residential, office, and leisure complex. The new additions brought transparency and light, contrasting with the original rugged structure and offering modern, luxurious living spaces alongside creative office environments.

Location
Tallinn
Client
Koger Kinnisvara
Commission
2004
Completed
2007
Size
19 400 m2
Architects:
Raivo Kotov, Andrus Kõresaar
Interior architects
Kätlin Ölluk, Liis Lindvere, Liisi Murula-Kerstna, Margit Argus, Raili Paling
Lead structural engineer
Ago Kuddu
Construction
Koger & Partnerid, building manager: Toomas Kaares
Awards:
  • 2007 London Design Museum / Design of the Year / Category: achitecture / Shortlisted as finalist
  • 2006 Cultural Endowment of Estonia / Annual Prize for Architecture

Functionality Today: Living, Working, and Social Spaces

Today, Fahle House stands as a vibrant space that seamlessly integrates living, working, and leisure. The upper floors feature stylish apartments that preserve the industrial charm of the original factory, with expansive windows offering sweeping views of Tallinn. A popular restaurant on the ground floor serves as a lively social hub, attracting both residents and visitors. This multifunctional design has made Fahle House a symbol of how historic buildings can be repurposed to meet contemporary needs, creating a space where the past and future coexist harmoniously.

Awards and Recognition

Fahle House has earned significant recognition both locally and internationally. In 2008, it was selected as a finalist for the prestigious Best Designs of the Year award by the London Design Museum, a testament to the innovative approach taken in its renovation. Additionally, it has received numerous Estonian architectural awards, including the Estonian National Cultural Heritage Award, which honors the careful preservation of this important piece of industrial history.

Zellulose factory ruins, 2004 Zellulose factory ruins, 2004
Zellulose factory ruins, 2004
View through the boiler house, 2004. Now KOKO office space and apartments View through the boiler house, 2004. Now KOKO office space and apartments
View through the boiler house, 2004. Now KOKO office space and apartments
View from South View from South
View from South
View from East View from East
View from East
Loft apartment with moving light bamboo forest Loft apartment with moving light bamboo forest
Loft apartment with moving light bamboo forest
View from inner street View from inner street
View from inner street
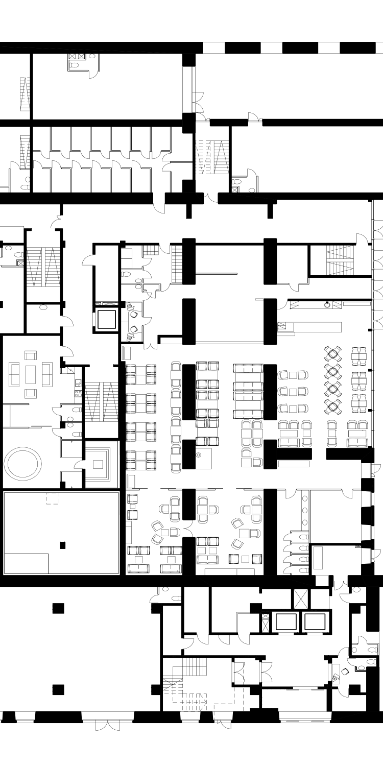
Ground floor plan Ground floor plan
Ground floor plan
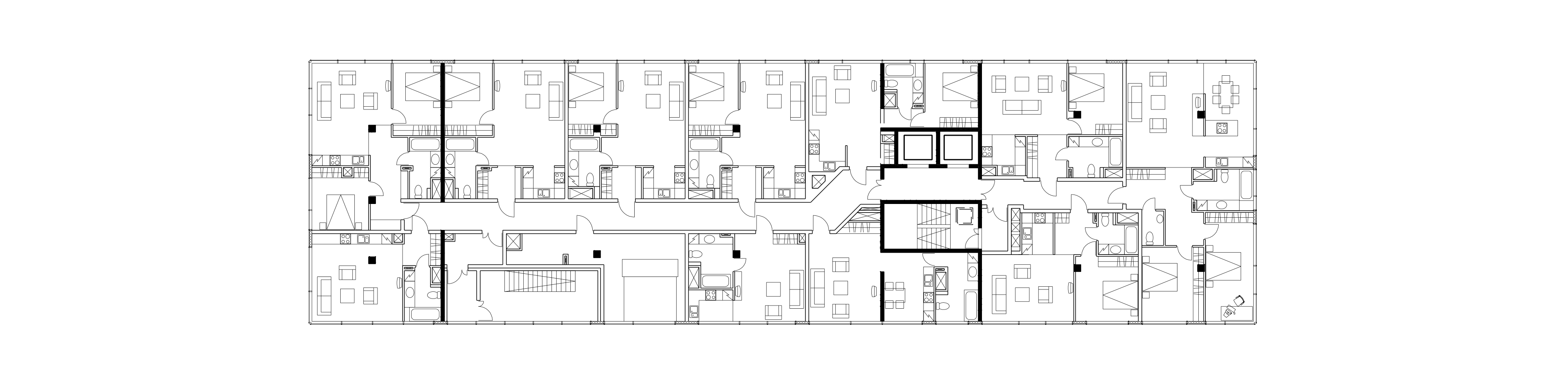
3rd floor plan 3rd floor plan
3rd floor plan
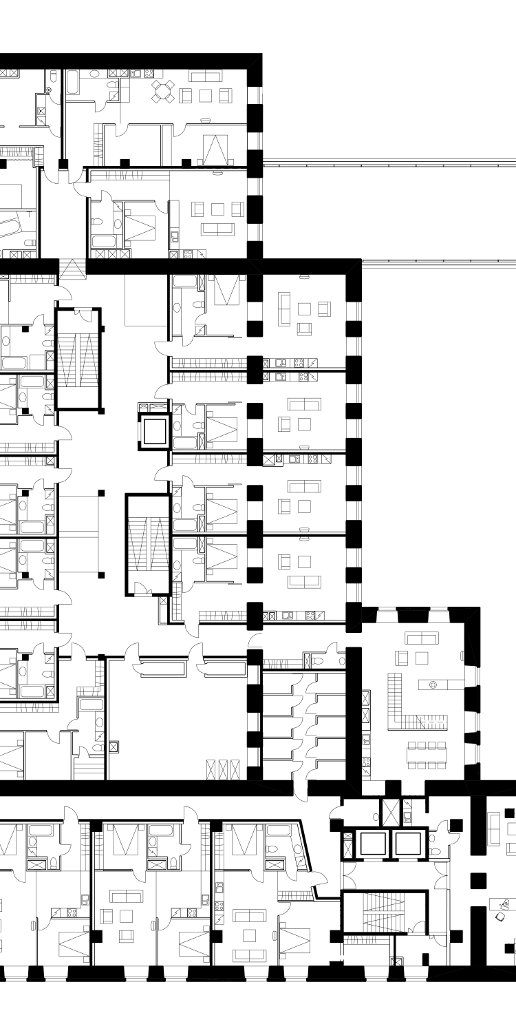
13th floor plan 13th floor plan
13th floor plan
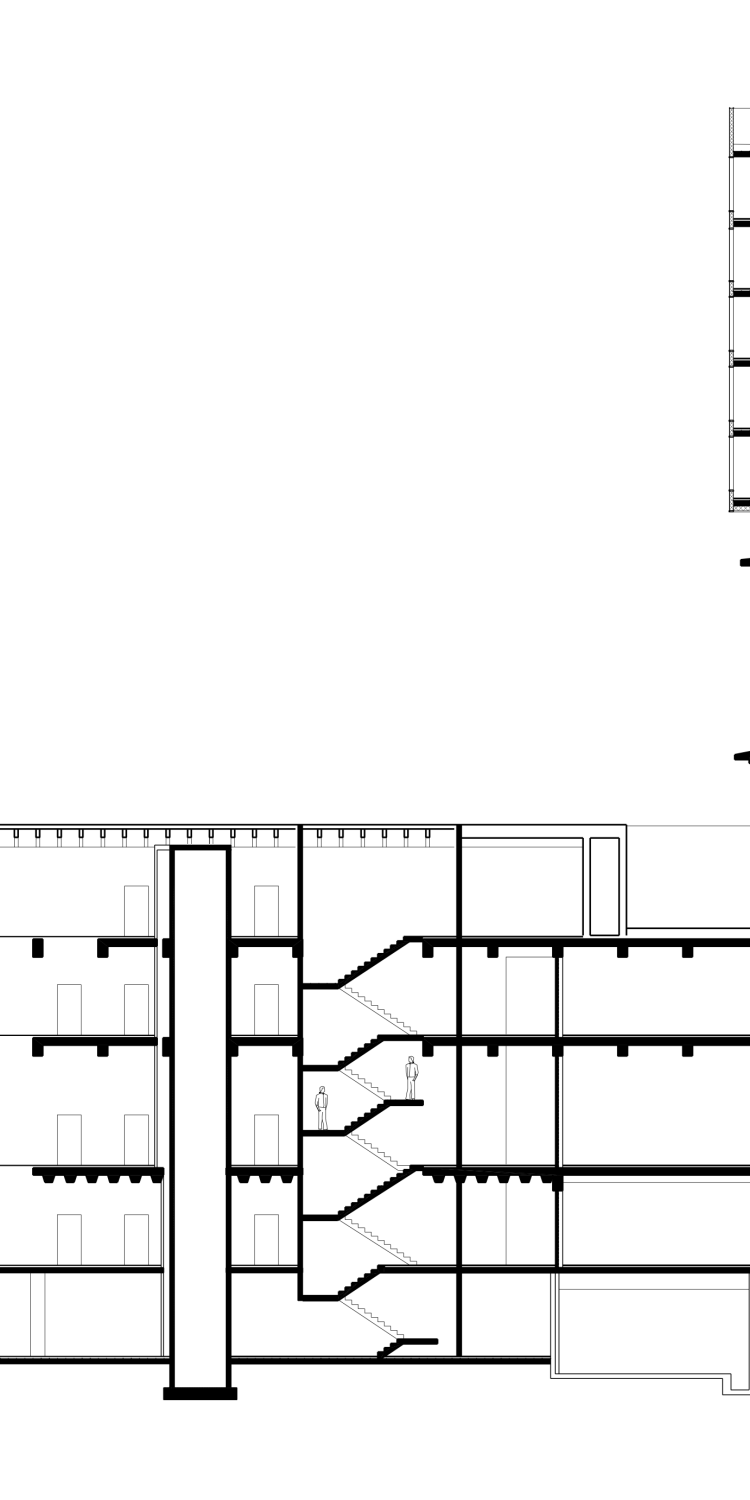
Section Section
Section
3D section / A 3D section / A
3D section / A
3D section / B 3D section / B
3D section / B

Photos: Tõnu Tunnel, Kaido Haagen, Andrus Kõresaar

KOKO architects Facebook KOKO architects Instagram KOKO architects LinkedIn
KOKO architects 2026