Tallinn Synagogue Tallinn Synagogue

Tallinn Synagogue

Heart for jewish religious and cultural life in Tallinn

For more than sixty years, Tallinn’s Jewish community lived without a synagogue. The original building, completed in 1885, had been the heart of Jewish life in the city until the Second World War, when it was destroyed in heavy bombing. With its loss, the community was left without a proper place for prayer, study, or gathering. Services continued in temporary rooms and improvised spaces, but for decades Tallinn remained one of the few European capitals without a synagogue. This absence was both physical and symbolic: it marked a gap in the city’s cultural landscape and in the continuity of Jewish life in Estonia.

A turning point came at the beginning of the 2000s, when a young and energetic rabbi arrived in Tallinn. He understood that the community needed more than borrowed rooms—it needed a visible and permanent home. His determination gave new momentum to a long-held dream of rebuilding the synagogue. Through his efforts, and with the support of the community and international partners, the project finally took shape. We were given the task of designing the new synagogue, and with it the chance to give architectural form to both memory and renewal.

From the beginning, our approach was not to reconstruct the lost 19th-century building but to create a synagogue for the present. We asked how Jewish traditions, rituals, and symbols could be translated into a contemporary language while still preserving dignity and continuity. The site, a quiet street just beyond the busy city centre, offered the right balance: close to urban life, yet sheltered enough for reflection and community.

The architectural concept is based on a single unifying gesture. We designed a vaulted form that gathers the synagogue’s many functions—prayer, study, celebration—under one roof. This creates both symbolic and spatial unity: sacred and secular activities coexist, yet each has its own place. The main prayer hall is located on the upper level, reached by a broad staircase that connects foyer and sanctuary. This stair is more than circulation—it frames ritual processions, provides a space for conversations, and allows the foyer to expand into an informal meeting ground before and after events.

Location
Tallinn
Architects
Lembit-Kaur Stöör, Tõnis Kimmel
Interior architects
Liis Lindvere, Raili Paling
Creative director
Andrus Kõresaar
Client
Estonian Jewish Religious Community
Invited architecture competition
2004, 1st prize
Completed
2007
Size
1 500 m2
Awards:

2009 EU Prize for Contemporary Architecture / Mies van der Rohe Award / Nominee
2008 Wienerberger Brick Award / Nomination for best international brick building
2007 Cultural Endowment of Estonia / Annual Prize for Architecture / Architecture and Interior Architecture

Photo from courtyard Photo from courtyard
Photo from courtyard

Inside, we worked with a restrained and tactile material palette. Timber brings warmth and intimacy, glass creates transparency and openness, and concrete provides structure and permanence. Daylight plays a key role, animating surfaces and changing the character of rooms over the course of the day. Subtle symbolic patterns, drawn from Jewish tradition, are integrated into glass and wooden elements. These motifs are not decorative additions but integral to the architecture, binding spaces together and marking thresholds.

The synagogue is part of a wider story of cultural renewal in Estonia since independence. Many new sacred buildings have appeared, each expressing different facets of identity. Among them, the Tallinn Synagogue is distinctive because of its dual importance: it is both a contemporary work of architecture and a deeply significant cultural landmark. Its inauguration in 2007 was not only a local celebration but an international event, attended by leading figures of the global Jewish community, including Shimon Peres and Rabbi Yona Metzger.

Frontal view Frontal view
Frontal view
View from street View from street
View from street
Evening view Evening view
Evening view

For us, the synagogue represents more than design. It is a symbol of resilience and continuity, a sign that a community which endured decades without a home has regained its place in the city. We see it as a living building—one that hosts prayer and ritual, but also learning, dialogue, and celebration. Its value lies in how it is used: the rhythm of weekly services, the gatherings that spill from the hall into the foyer, the quiet moments of reflection.

 

Synagogue hall Synagogue hall
Synagogue hall

On the ground floor, we placed spaces that serve daily needs and support the wider community. The mikvah, the ritual bath, is one of the most important facilities in Jewish tradition, ensuring that the synagogue is not only a place of prayer but also a place where religious practice is fully sustained. Alongside it, a kosher restaurant offers food and hospitality. It connects the synagogue with the city, welcoming both community members and guests, and allowing the building to function as a lively meeting point. The foyer, with its generous scale and open stair, is conceived as a flexible space. It can host lectures, receptions, or cultural events, turning the entrance into an active stage for communal life.

The heart of the building is the synagogue hall itself, located on the upper floor. Placing it above ground level ensures both security and calm, while also giving the ritual space a sense of elevation. The hall is framed by a surrounding gallery, which increases capacity and allows different parts of the community to participate while maintaining visual and spatial unity. Natural light enters the hall through carefully positioned openings, reinforcing the serene atmosphere during prayer.

Around the hall, we organized a series of complementary functions that expand the role of the synagogue beyond worship. Office rooms provide space for community administration and for the rabbi’s work, ensuring that leadership and organization are embedded in the daily life of the building. A museum room offers a place for exhibitions, preserving the memory of Jewish life in Estonia and introducing it to a wider audience. Together, these functions transform the synagogue into a cultural hub and a centre of learning.

All of these spaces are bound together by the architecture’s central idea: one continuous volume that combines sacred and communal life. The broad stair linking foyer and prayer hall is not just circulation but a symbolic connector, guiding visitors from everyday activities to ritual experience. Materials and details reinforce this unity—wood, glass, and concrete used with restraint, and symbolic motifs integrated into surfaces as subtle markers of identity.

Main staircase and foye Main staircase and foye
Main staircase and foye
Granate apple tree motive Granate apple tree motive
Granate apple tree motive
Ground floor plan Ground floor plan
Ground floor plan
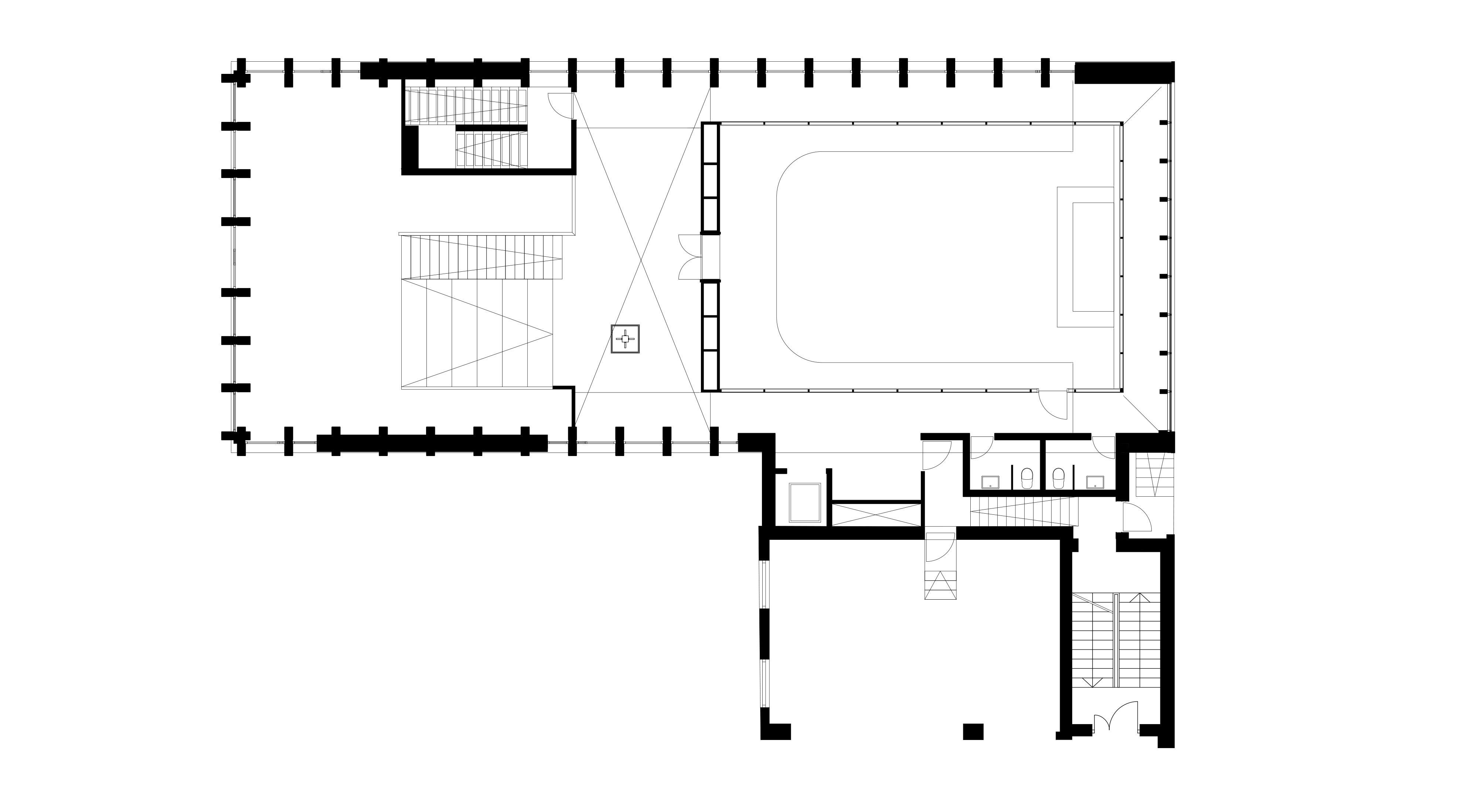
First floor plan First floor plan
First floor plan
Second floor plan Second floor plan
Second floor plan
Section Section
Section
3D scheme 3D scheme
3D scheme

Photos: Tõnu Tunnel, Kaido Haagen, Andrus Kõresaar

KOKO architects Facebook KOKO architects Instagram KOKO architects LinkedIn
KOKO architects 2026